Dom Dobra
Dobra Pokaż na mapie ›
Dodane: Wtorek, 03 Marzec, 2026 03:19
800 000 zł
3419 zł/m2
Szczegóły ogłoszenia
- Kategoria: Domy / Sprzedaż
- Powierzchnia:234 m2
- Liczba pokoi:5 i więcej pokoi
- Pow. działki:1600 m2
- Rynek:Wtórny
- Rok budowy:2018
- Sprzedaż:Pośrednik
- Cena: 800 000 zł / 3419 zł/m2
Opis oferty
|Dobra - przestronny, wolnostojący dom jednorodzinny o pow. użytkowej 179 m 2 z widokiem na Beskid Wyspowy .
Klimatyczny dom jednorodzinny położony w miejscowości Dobra zlokalizowanej u podnóża pasma Beskidu Wyspowego, z bezpośrednim dostępem do szlaków turystycznych prowadzących do wieży widokowej na szczycie Mogielicy, jak również do szczytów Ćwilin, Łopień i Śnieżnica oraz z łatwym dojazdem do stacji narciarskiej Kasina Wielka (Kasina Ski - 12 km).
Budynek został oddany do użytkowania w 2008 roku , posiada powierzchnię całkowitą wynoszącą 234 m 2 i posadowiony jest na widokowej działce o pow. 16 ar.
Konstrukcja budynku jest dwukondygnacyjna, częściowo podpiwniczona, wykonana w technologii tradycyjnej , murowanej ze stropami żelbetowymi, fundamenty betonowe - zazbrojone. Ściany zewnętrzne nośne wykonane w układzie: bloczki gazobetonowe (24 cm), warstwa izolacyjna z wełną mineralna (9 cm), wewnątrz warstwa cegły (12 cm), elewacja tynk mineralny z izolacją termiczną (styropian). Konstrukcja dachowa z więźbą drewnianą, dwuspadową, pokrycie dachowe wykonane z płyt epoksydowych zbrojonych włóknem szklanym , izolacja termiczna stropu i dachu z wełny mineralnej .
Budynek wyposażony w wewnętrzną instalację wodno-kanalizacyjną, system centralnego ogrzewania zasilany z pieca na paliwo stałe (24 kW) . Podgrzewanie ciepłej wody użytkowej z systemu CO, z wykorzystaniem elektrycznego zasobnika CWU (Biowar) .
Budynek posiada przyłącze do sieci elektroenergetycznej oraz sieci kanalizacyjnej, przyłącze w ody do gminnej sieci wodociągowej.
W skład nieruchomości wchodzą:
- parter składający się z pokoju dziennego z wyjściem na balkon (27,26 m2), kuchni z jadalnią (19,30 m2), 2 pokoje (14,56 m2, 10,76 m2), łazienki (5,25 m2) , WC (1,36 m2)
- poddasze składające się z 4 pokoi/sypialni (19,72 m2, 17,68 m2, 11,40 m2, 6,72 m2) , łazienki (2,20 m2) oraz komunikacji
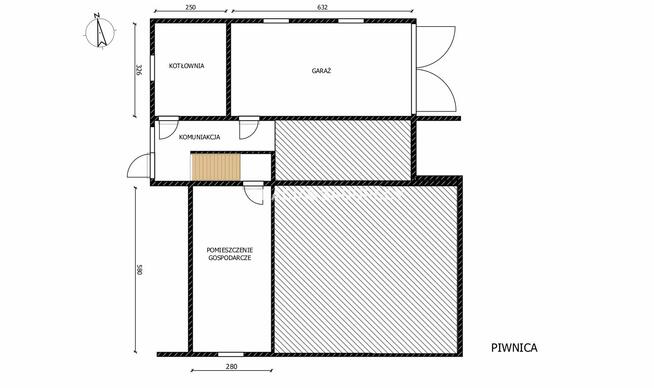
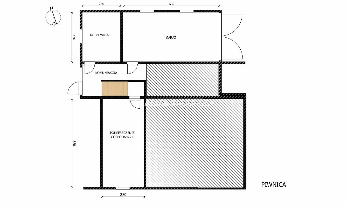
- piwnica obejmująca: garaż (20,16 m2), pomieszczenie gospodarcze (13,92 m2), kotłownię (8,00 m2)
Działka położona jest w niezwykle spokojnej okolicy, nad potokiem Łososinka, z nieruchomości roztacza się atrakcyjny widok na otaczające tereny zielone i pobliskie szczyty pasma Beskidu Wyspowego.
Nieruchomość bardzo dobrze skomunikowana , dojazd do działki zapewnia gminna droga asfaltowa o bardzo małym natężeniu ruchu, wjazd na DK 28 jest w odległości 900 m. Odległości: siedziba władz gminnych w Dobrej - 2,5 km, odległość do Limanowej wynosi 17 km , Myślenice są oddalone o 40 km, natomiast dystans do granicy miasta Krakowa to 50 km.
Najbliższe obiekty użyteczności publicznej : przystanek autobusowy - 900 m , sklep spożywczy - 800 m, szkoła podstawowa w Dobrej - 2,5 km.
Biuro pomaga bezpiecznie przeprowadzić transakcję.
Zapraszam do kontaktu i na prezentację nieruchomości.
Wojciech Sudoł
+48 509 - pokaż numer telefonu -
@
::DODATKOWE INFORMACJE |
Parking strzeżony (odległość w metrach) : 1000 |
Prąd: w budynku |
Gaz: jest |
Woda: jest |
Dojazd: asfalt |
Otoczenie: góry |
Ogrzewanie: piec węglowy |
Kanalizacja: miejska |
Komunikacja publ.: autobus podmiejski |
Odległość do komunikacji publicznej : 800 |
Odl. do sklepu : 850 |
Odl. do szkoły : 2700 |
Okna: PCV |
Instalacje: dobre |
Balkon: duży |
Liczba balkonów: 1 |
Powierzchnia ogródka : 1400 |
Wymiary działki : 34 x 71 x 27,5 x 34,2 x 15,6 x 41,5 |
Zagosp. działki: częściowo zagospodarowana |
Ukształtowanie działki: lekko nachylona |
Kształt działki: nieregularny |
Rodzaj domu: jednorodzinny |
Stan wybudowania: Pod klucz |
Typ elewacji: tynk zwykły |
Pokrycie dachu: inne |
Powierzchnia użytkowa : 179 |
Stan budynku: do odświeżenia |
Podpiwniczenie: częściowo podpiwniczony |
Garaż: w bryle |
Ogrodzenie działki: brak |
Rok budowy: 2018 |
Liczba pokoi: 7 |
Wysokość pomieszczeń : 2,5000 |
Liczba sypialni: 6 |
Powierzchnia pokoi : 108,1 |
Podłogi pokoi: drewniana |
Ściany pokoi: zwykłe, malowane |
Wystawa okien - pokoje : Pd, Zach, Wsch |
Typ kuchni: otwarta połączona z jadalnią |
Rodzaj kuchni: jasna z oknem |
Powierzchnia kuchni : 19,3 |
Podłoga kuchni: gres |
Wystawa okien - kuchnia: Wsch |
Typ łazienki: razem z wc |
Liczba łazienek: 2 |
Powierzchnia łazienki : 7,45 |
Glazura łazienki: starszego typu |
Podłoga łazienki: gres |
Wyposażenie łazienki: WC, umywalka, natrysk |
Ściany łazienki: glazura |
Liczba WC: 1 |
Powierzchnia WC: 1,36 |
Glazura WC: starszego typu |
Podłoga WC: gres |
Ściany WC: glazura |
Liczba przedpokoi: 3 |
Powierzchnia przedpokoi : 35,16 |
Podłoga przedpokoi: gres |
Ściany przedpokoi: tynk ozdobny, tynk, malowane |
::LINK DO STRONY |
sadurscy.pl/offer/BS5-DS-314191
Zobacz Wirtualny Spacer: https://sb360.online/ojrp9u
::KONTAKT DO AGENTA |
Wojciech Sudoł |
+48 509 - pokaż numer telefonu - |
@
::DANE BIURA |
Oddział BS5, Nowa Huta |
Bracia Sadurscy Dariusz Sadurski |
Os. Kazimierzowskie 36 |
31-844 Kraków |
12 265 10 29
|
Oferta wysłana z systemu Galactica Virgo
Numer oferty: BS5-DS-314191
Powiadom o podobnych ogłoszeniach
Lokalizacja: Dobra
Kategoria: Nieruchomości » Domy » Sprzedaż
Cena: od 680000 zł do 920000 zł Powierzchnia : od 199 m2 do 269 m2
Chcę otrzymywać powiadomienia o nowych ofertach
- Wypromuj ogłoszenie
- Zgłoś naruszenie
- Drukuj ulotkę
- Edytuj/usuń ogłoszenie
- Udostępnij ogłoszenie
- Dodaj na Facebook






























